A edificação pré-existente sofreu inúmeras intervenções para acomodar um posto de atendimento do Detran-RJ. Para resgatar os traços da sua forma original, foram demolidas as divisórias internas que constituíam pequenas saletas, os forros de PVC que escondiam o desenho do telhado e os tijolos de barro existentes, e por último, as telhas de amianto que cobriam o restante do lote.
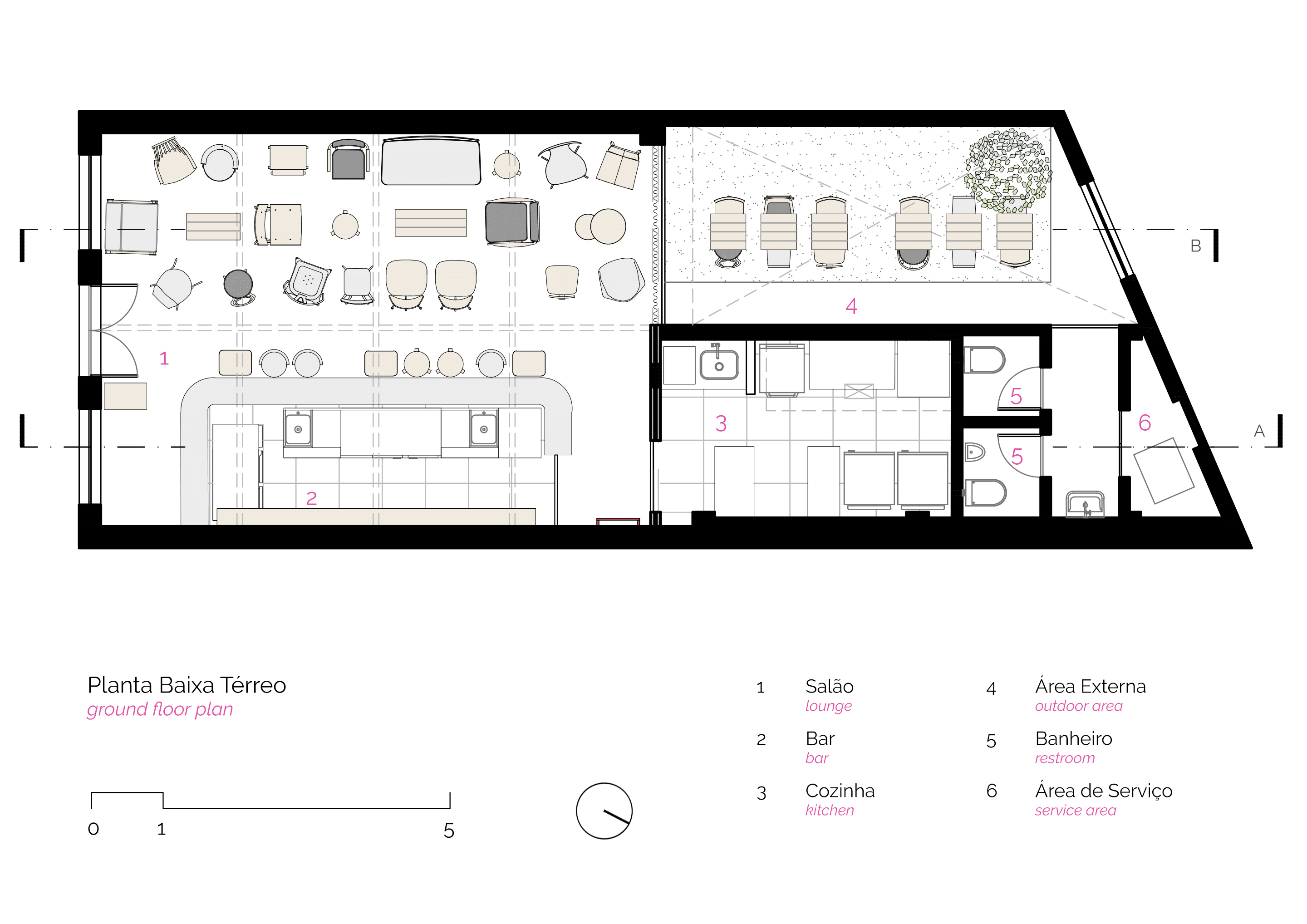
Com a planta livre, projetamos novas estruturas para o bar, cozinha, banheiros, área de serviço e depósito. Todas as intervenções foram pensadas a partir da coleção de obras do artista (e um dos sócios) Jonas Aisengart, que são bem coloridas. Adotamos uma arquitetura neutra, com ares de galeria, para dar destaque à sua arte – quadros e esculturas — e aos demais itens que compõe o espaço — gaiolas, luminárias, plantas e o mobiliário desconexo.
Os tijolos aparentes na parte superior receberam pintura branca e as paredes na metade inferior foram refeitas com acabamento liso, livres para a exposição. O piso em cimento queimado no salão dá lugar à brita na área externa, que também dispõe de um toldo para dias chuvosos.
O bar, com seus cinco metros de comprimento e arestas arredondadas, tem tampo em concreto aparente, fechamento inferior em telha ecológica terracota e uma grande estante de plano de fundo, exibindo garrafas junto a uma mistura improvável de cacarecos divertidos.
As características originais da fachada também foram mantidas, mas agora com a cor da identidade visual – o rosa superstar – e novos detalhes como a porta principal com almofada pintada à mão livre, a cortina de miçangas e o letreiro em neon.




